連載· 34 |《變風量空調系統》——5.5 新型變風量系統設計案例
2018-02-23
以下假定同一商務寫字樓在不同地域(分別位于北京、上海、廣州)進行標準層變 風量空調風系統和控制系統設計,并給出三種標準層設計范例。
5.5.1項目概況
該寫字樓為高層建筑,標準層建筑面積為 1971.6m2,設計層高為 4.2m,吊頂以下為 2.7m,中央空調冷源采用離心式水冷機組,熱源采用燃氣鍋爐。水系統高低分區,夏季低區冷凍水設計供回水溫度為 5/12℃,高區通過板式換熱器供冷,冷凍水供回水溫度為 6/13℃。末端空調采用變風量大溫差低溫送風系統,空調送風溫度設計值為 12℃,室內設計狀態點為內區 25℃、50%,外區 26℃、50%,室內噪聲要求不大于 45dB。
5.5.2空調系統設計
空調風系統按內外分區設置,距離外墻 4m 以內為外區,并且將外區分為東西南北、 四角,共八個區域分別進行逐時負荷計算,內區作為一個區域進行負荷計算,空調時間 8 :00~18 :00。不同地區空調冷負荷計算結果見表 5-23~ 表 5-25,逐時單位面積冷負 荷變化曲線如圖 5-22~ 圖 5-24 所示。標準層總面積 1971.6m2,外區空調面積 612.5m2, 內區空調面積 1008m2。空調面積冷指 標:北京 105.7W/m2、 上 海 117.7W/m2、廣州 115.1W/m2;總建筑冷指標:北京 86.9W/m2、上海 96.8W/m2、廣州 94.8W/m2。
根據不同地域的空調負荷特點,進行變風量空調系統設計,具體空調末端設備配置情況見表 5-26。根據總尖峰負荷進行空調處理機組選型設計,選型結果見表 5-27。根 據各區域負荷情況,進行末端設備配置設計,選型結果見表 5-28、表 5-29。
1. 內外分區示意圖如圖5-21所示。
圖 5-21 內外分區示意圖

表 5-23 北京地區負荷計算結果 (W/m2)

表 5-24 上海地區負荷計算結果 (W/m2)

表 5-25 廣州地區負荷計算結果 (W/m2)

表 5-26 空調末端設備配置情況

表 5-27 空調處理機組配置情況

圖 5-22 北京地區不同朝向分區的逐時面積冷負荷變化曲線圖(W/m2)

圖 5-23 上海地區不同朝向分區的逐時面積冷負荷變化曲線圖(W/m2)

圖 5-24 廣州地區不同朝向分區的逐時面積冷負荷變化曲線圖(W/m2)

表 5-28 空調末端設備配置數量表

表 5-29 變風量空調智慧控制柜(RM5600)選型配置情況

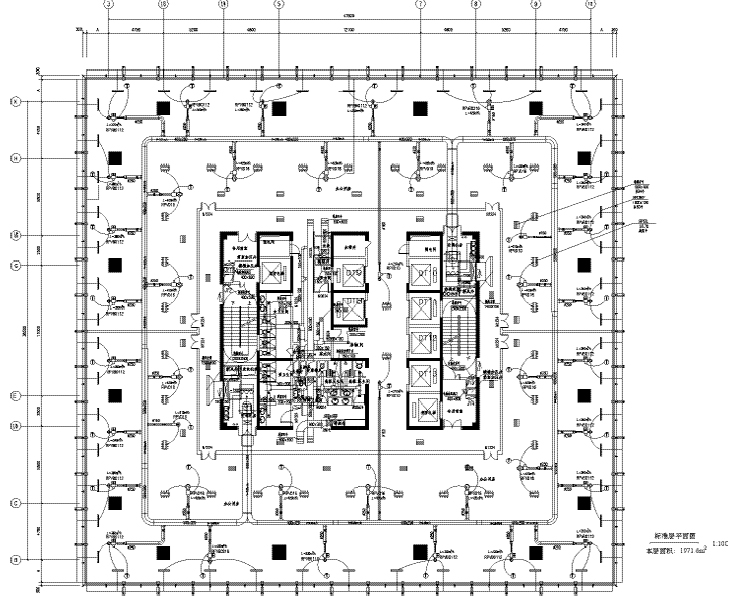
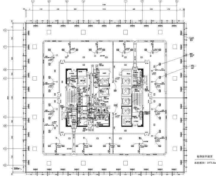
2. 三種典型區域標準層空調風系統平面圖
(1)北京地區:內區單風道,風機盤管。
(2)上海地區:內區單風道,外區并聯。
(3)廣州地區:內區單風道,外區單風道。
3. 變風量空調系統的節能分析
(1)變風量空調系統的年運行耗電量計算。北京、上海、廣州三個地區辦公樓的夏 季制冷運行時間分別假定為 3 個月、4 個月和 5 個月,商務寫字樓空調一周工作 5 天, 則夏季制冷空調實際運行天數大約分別按 60 天、80 天、120 天計算,每天運行時間為 10h;冬季制熱空調實際運行天數大約分別按 85 天、60 天、0 天。考慮部分負荷的影響, 采用變風量空調系統時,其風系統的年運行耗電量計算結果見表 5-30~ 表 5-32。
表 5-30 北京地區變風量空調系統年運行耗電量

注 1. 空氣處理機組變頻器的最低頻率按 20Hz 考慮,25% 負荷工況下,變頻器按最低頻率運行。
2. 空調末端設備配置情況參見表 5-28,并聯式風機動力型 VAV-TMN 的風機功率參見表 5-4,FP-6.3WA 的風機功率為 39W。
3. 上海、廣州地區變風量空調系統的設置參數與上述兩點相同。
(2)定風量空調系統的年運行耗電量計算。如采用定風量空調系統設計時,空氣處 理機組的風量需按照各分區最大風量的和進行配置,其具體的配置情況見表 5-33。
表 5-33 空氣處理機組配置情況

表 5-31 上海地區變風量空調系統年運行耗電量

表 5-32 廣州地區變風量空調系統年運行耗電量

采用定風量空調系統時,其風系統的年運行耗電量見表 5-34。
表 5-34 定風量空調系統年運行耗電量

(3)變風量空調系統的節能率。相對于定風量空調系統,采用變風量空調系統時的 節能率見表 5-35。
表 5-35 變風量空調系統的節能率

北京、上海、廣州地區辦公樓變風量系統風管平面圖如圖 5-25~ 圖 5-27 所示。
圖 5-25 北京地區某辦公樓變風量系統風管平面圖
(外區并聯 VAV BOX,內區單風道)

圖 5-26 上海地區某辦公樓變風量系統風管平面圖
(外區并聯 VAV BOX,內區單風道)

圖 5-27 廣州地區某辦公樓變風量系統風管平面圖
(內、外區單風道)


